Rocks & mirror
WÄRTSILÄ
Encyclopedia of Marine and Energy Technology

Engine room arrangement

marine

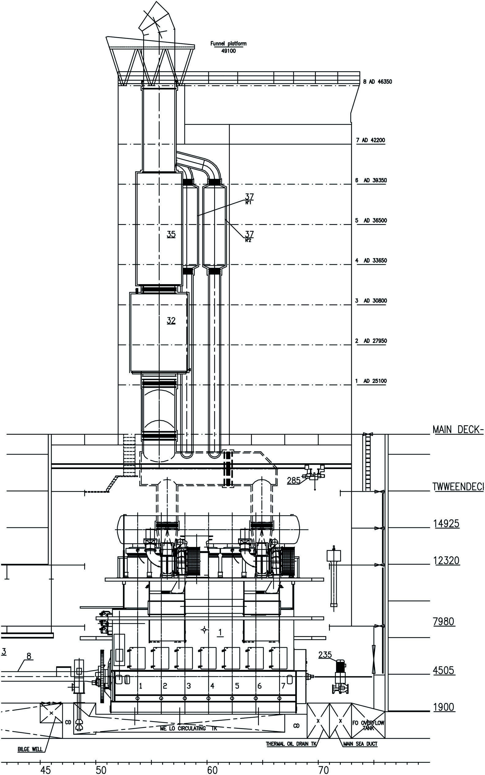
To obtain good working conditions in the engine room, it is necessary to investigate its layout from a very beginning of any design. Attention shall be paid to the ventilation, transport ways, escapes, maintenance hatch and space for maintenance etc. The accommodation block is usually arranged above the engine room and both of them must be very well coordinated to create one logical solution. Detailed Engine Room Arrangement with the Index of Machinery and Equipment shall be the part of the Contract Design.

 

Engine room arrangement Engine room arrangement Engine room arrangement Engine room arrangement Engine room arrangement Engine room arrangement Engine room arrangement Engine room arrangement